





Article Atelier & Gallery
アーティクル アトリエ アンド ギャラリー
※最新情報や空き状況などは、必ずギャラリーのホームページからご確認ください。
| ギャラリー名 | Article Atelier & Gallery |
| 所在地 |
〒413-0006 静岡県熱海市桃山町20-8 松本ビル地下1階
|
| マップ |
|
| アクセス |
JR/
|
| 営業時間 | 不定休 |
|
ギャラリーからの ご案内 |
日本有数の温泉地である熱海で、JR線/ |
| 料金設定 |
2日から(20,000円~)※ |
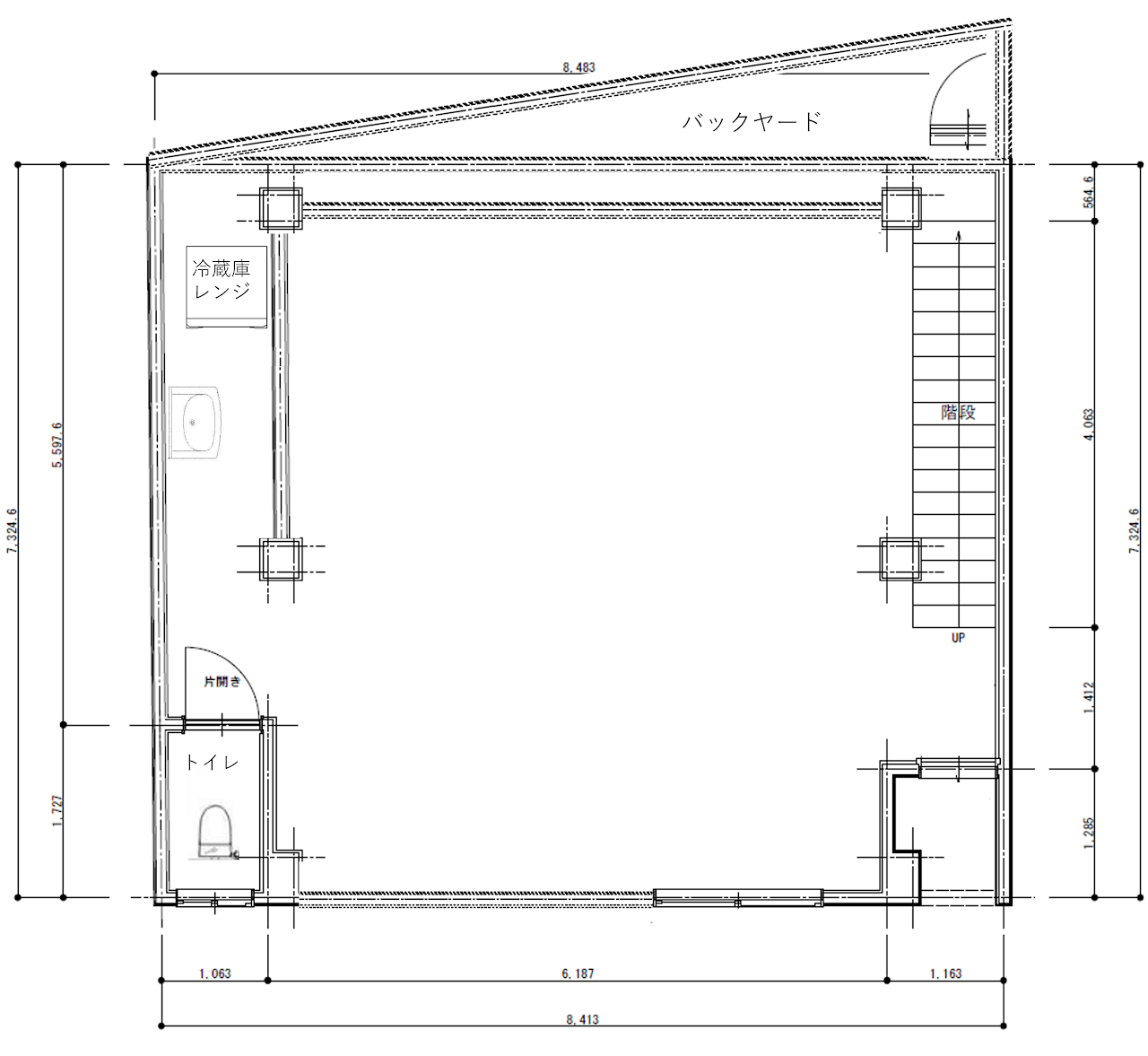
| スペース広さ |
42平米(+ 詳しくは間取り図をご参照ください。 |
| 設備/備品 |
洗面台、トイレ、折畳テーブル(5台)、 |
ギャラリーへのお問い合わせ
オプションを選択

PRINT RESOLUTION
超高精細なプリント解像度
フォトコンテスト入賞も多数、額に入れて置くだけで存在感のある作品へ
「安い ネットプリント」で検索して出てくるサービスのほとんどは、チラシなどのビジネス向けのためプリント解像度が低く作品や写真にするのには全く向かない設定です。
”PHOTOPRI"なら超高精細(2880×1440dpi)と言われる作品作りに特化した高品質なジークレープリントなので作品の迫力や存在感を引き出したい時に最適です。

LONG LIFE
作品の長期保存
著名な写真家も愛用する、EPSON社純正のプリンター&インクを使用しているため、作品としてのクォリティだけではなく30年以上の耐光性、長寿命プリントで定評のあるエプソン顔料大判インクジェットプリンタSureColorでの出力を行っております。
作品の販売など、作家の手を離れた後もより長い期間作品を劣化させずに飾っていただけます。

COLOR CONTROL
高い色再現性
RGB印刷を採用しているため、スマホやPCディスプレイに近い色再現が可能です。
自宅やコンビニで印刷したけど、粗かったり思った仕上がりにならなかったりした経験はありませんか?
”PHOTOPRI”では入稿〜出力設定、梱包まで人の手で1つ1つ確認をしており
解像度と指定サイズが合わない場合など、ご連絡を差し上げることがございます。
”PHOTOPRI”でできる範囲でイメージに近い作品出力に協力をさせていただきます。
RECENTLY VIEWED






