













同時代ギャラリー
Dohjidai gallery
※最新情報や空き状況などは、必ずギャラリーのホームページからご確認ください。
| ギャラリー名 | 同時代ギャラリー |
| 所在地 |
〒604-8082
京都府京都市中京区三条通御幸町東入弁慶石町56 1928ビル2F |
| マップ |
|
| アクセス |
京都市役所前駅から徒歩3分
京都河原町駅から徒歩7分
三条駅から徒歩8分
烏丸御池駅から徒歩8分
|
| 営業時間 |
月曜日(祭日の場合は開廊) 12:00~19:00(最終日は最長17:00迄) ※展覧会によっては最終日の時間が変わります |
|
ギャラリーからの ご案内 |
同時代ギャラリーは、特定の美術ファンだけではなく、幅広く一般 京都の文化・アートシーンの中心部ともいえる、三条通御幸町角に 地階には、別部門として運営する「INDÉPENDANTS」が —同時代性をキーワードに、完成の無い「ギャラリー」という空間 同時代ギャラリーは、新時代を拓く創造力の源泉でありたいと願っ |
| 料金設定 |
A Gallery ギャラリー 1週間:¥198,000-(税込)
B Gallery Bis ギャラリービス 1週間:¥132,000-(税込) A/B(半面)プラン1週間:¥82,500-(税込)
C Collage plus コラージュプリュス 1ヶ月:¥165,000-(税込) 1週間:¥66,000-(税込)
D un plus, アンプリュス, 1ヶ月:¥110,000-(税込) 1週間:¥33,000-(税込) 2週間:¥66,000-(税込) 3週間:¥99,000-(税込) |
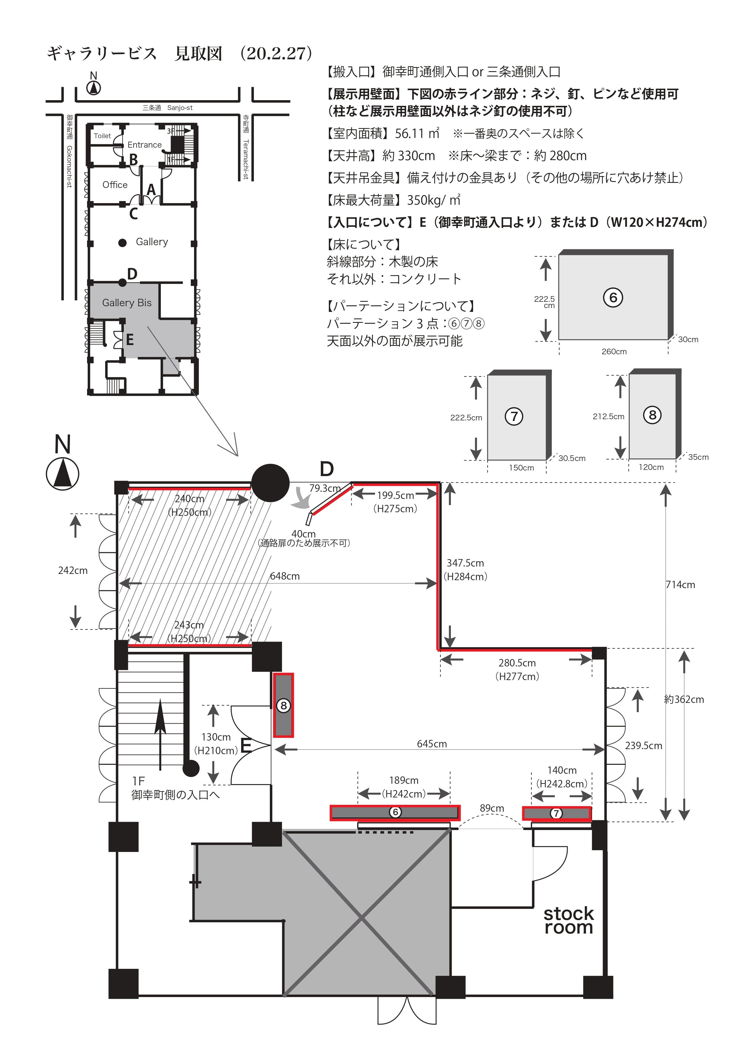
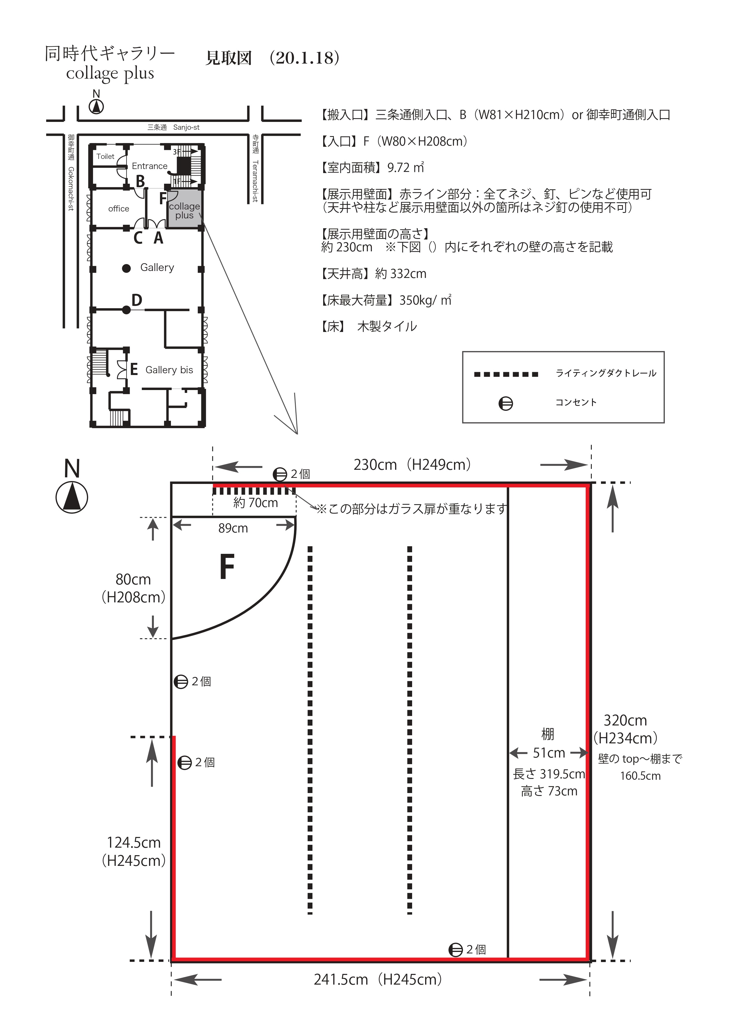
| スペース広さ |
詳しくは間取り図をご参照ください。 |
ギャラリーへのお問い合わせ
オプションを選択

PRINT RESOLUTION
超高精細なプリント解像度
フォトコンテスト入賞も多数、額に入れて置くだけで存在感のある作品へ
「安い ネットプリント」で検索して出てくるサービスのほとんどは、チラシなどのビジネス向けのためプリント解像度が低く作品や写真にするのには全く向かない設定です。
”PHOTOPRI"なら超高精細(2880×1440dpi)と言われる作品作りに特化した高品質なジークレープリントなので作品の迫力や存在感を引き出したい時に最適です。

LONG LIFE
作品の長期保存
著名な写真家も愛用する、EPSON社純正のプリンター&インクを使用しているため、作品としてのクォリティだけではなく30年以上の耐光性、長寿命プリントで定評のあるエプソン顔料大判インクジェットプリンタSureColorでの出力を行っております。
作品の販売など、作家の手を離れた後もより長い期間作品を劣化させずに飾っていただけます。

COLOR CONTROL
高い色再現性
RGB印刷を採用しているため、スマホやPCディスプレイに近い色再現が可能です。
自宅やコンビニで印刷したけど、粗かったり思った仕上がりにならなかったりした経験はありませんか?
”PHOTOPRI”では入稿〜出力設定、梱包まで人の手で1つ1つ確認をしており
解像度と指定サイズが合わない場合など、ご連絡を差し上げることがございます。
”PHOTOPRI”でできる範囲でイメージに近い作品出力に協力をさせていただきます。
RECENTLY VIEWED






