




White Gallery
ホワイト ギャラリー
※最新情報や空き状況などは、必ずギャラリーのホームページからご確認ください。
| ギャラリー名 | White Gallery |
| 所在地 |
東京都文京区千駄木2-35-2
|
| マップ | |
| アクセス |
千代田線千駄木駅(1番出口より徒歩2分) 山手線日暮里駅(北改札口より徒歩11分) |
| 営業時間 |
木曜日~翌火曜日・11:00~19:00(展示最終日によって |
|
ギャラリーからの ご案内 |
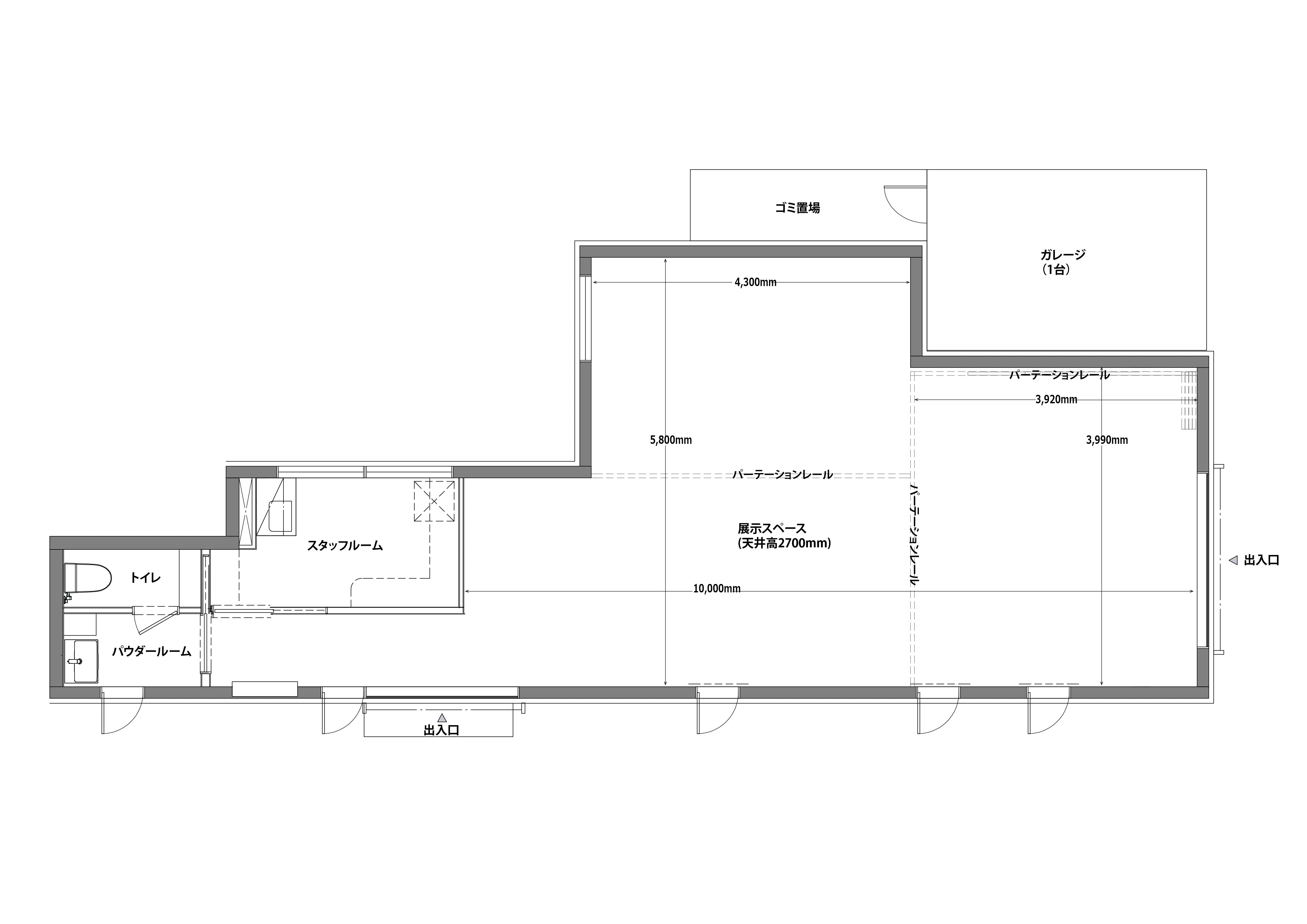
千代田線千駄木駅より徒歩2 分と駅から近く、観光やお買い物を楽しみに散策する人が多いへび道の脇にあります。 天井が高く白を基調とした広い展示スペースは、グループ展のご利用でもゆったりと作品を展示する事が出来ます。 備品のパーテーションをご利用する事で、平面作品が展示しやすい壁面の多い空間にすることや、展示とワークショップスペースとを分けることが可能です。 その他の詳しい利用規約や設備についてはホームページに掲載しております。 写真、絵画、彫刻、工芸、書、テキスタイル…様々なアート作品の表現の場として是非ご利用ください。 |
| 料金設定 |
木曜日~翌週火曜日までの6日間が1単位となります。 一般 ¥100.000(税込)/ 学生 ¥90.000(税込) 単位割りにつきましては是非ご相談ください。 |
| スペース広さ |
床面積51㎡、天井高2700mm、壁面積65㎡( ※詳しくは間取り図をご参照ください。 |
ギャラリーへのお問い合わせ
オプションを選択






PRINT RESOLUTION
超高精細なプリント解像度
フォトコンテスト入賞も多数、額に入れて置くだけで存在感のある作品へ
「安い ネットプリント」で検索して出てくるサービスのほとんどは、チラシなどのビジネス向けのためプリント解像度が低く作品や写真にするのには全く向かない設定です。
”PHOTOPRI"なら超高精細(2880×1440dpi)と言われる作品作りに特化した高品質なジークレープリントなので作品の迫力や存在感を引き出したい時に最適です。

LONG LIFE
作品の長期保存
著名な写真家も愛用する、EPSON社純正のプリンター&インクを使用しているため、作品としてのクォリティだけではなく30年以上の耐光性、長寿命プリントで定評のあるエプソン顔料大判インクジェットプリンタSureColorでの出力を行っております。
作品の販売など、作家の手を離れた後もより長い期間作品を劣化させずに飾っていただけます。

COLOR CONTROL
高い色再現性
RGB印刷を採用しているため、スマホやPCディスプレイに近い色再現が可能です。
自宅やコンビニで印刷したけど、粗かったり思った仕上がりにならなかったりした経験はありませんか?
”PHOTOPRI”では入稿〜出力設定、梱包まで人の手で1つ1つ確認をしており
解像度と指定サイズが合わない場合など、ご連絡を差し上げることがございます。
”PHOTOPRI”でできる範囲でイメージに近い作品出力に協力をさせていただきます。
RECENTLY VIEWED






